Starlex Autonoma ēka Vecrīgā pie Doma laukuma

Autonoma ēka Vecrīgā pie Doma laukuma


825 m2

m2

pirmskara
1 800 000 EUR
Jēkaba iela 3/5, Vecrīga, Rīga
Oskars Frīde
+371 29352652
oskars@starlex.lv
Pieteikt apskati
← Atpakaļ
Galerija

Apraksts:

Pārdod autonomu ēku Jēkaba ielā 3/5, (blakus Doma laukumam).

Īpašums uz doto brīdi ir atbrīvots no nomnieka.

Iepriekšējais nomnieks: ''Sudraba muzejs''

Biroja telpas tiek piedāvātas ar kvalitatīvu pilno apdari, mansarda stāvā saglabātas oriģinālās koka sijas, 1. stāvā pieejama gaisa ventilācijas sistēma, augstākajos stāvos dabiskā ventilācija, ēkā nav lifts, ir ar stikla starpsienām nodalītas darba telpas, pieejamas visas ērtības un komunikācijas, maksas auto stāvvietas blakus ēkai. Ēkas pagrabstāvā pieejamas seifa telpa un dokumentu glabātuve. Pirmais stāvs piemērots klientu apkalpošanai (līdzšinējais nomnieks: banka).

Papildus jāmaksā par komunālajiem maksājumiem (elektrība, ūdens, siltums), 1.50 EUR/m2 apsaimniekošanas maksa kā arī 0.48 EUR/m2 nekustamā īpašuma nodoklis.

Ienesīgums ~ 5% gadā.

Kopējā platība: 825 m2.

Cena: 1800000 EUR.

  • Centrālā apkure
  • Internets



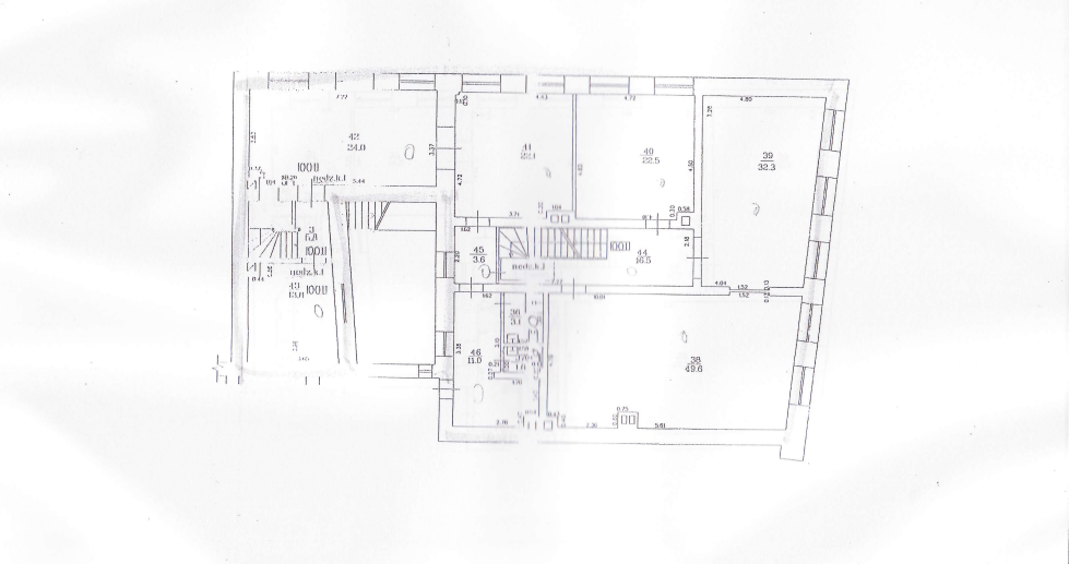
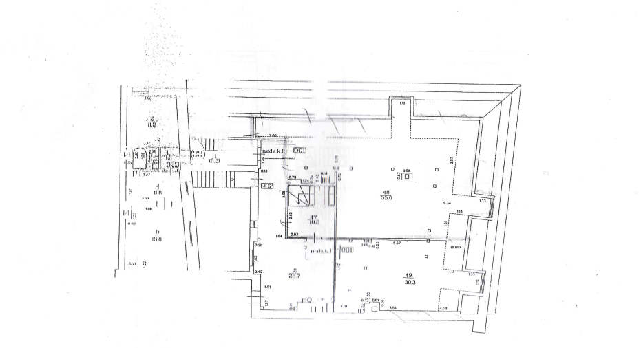
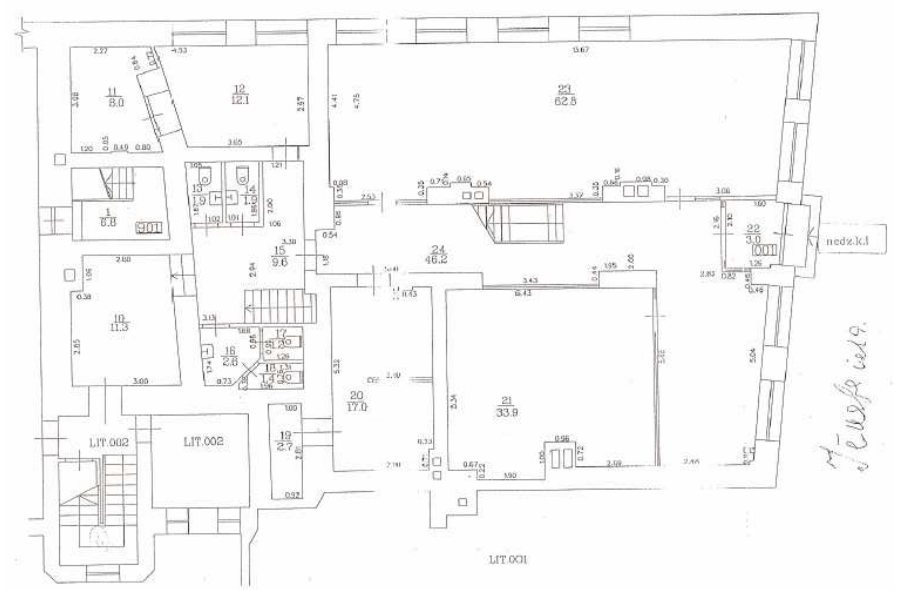
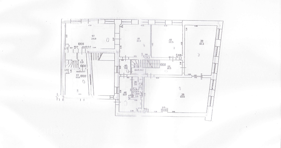
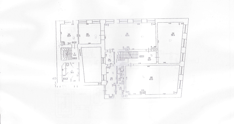
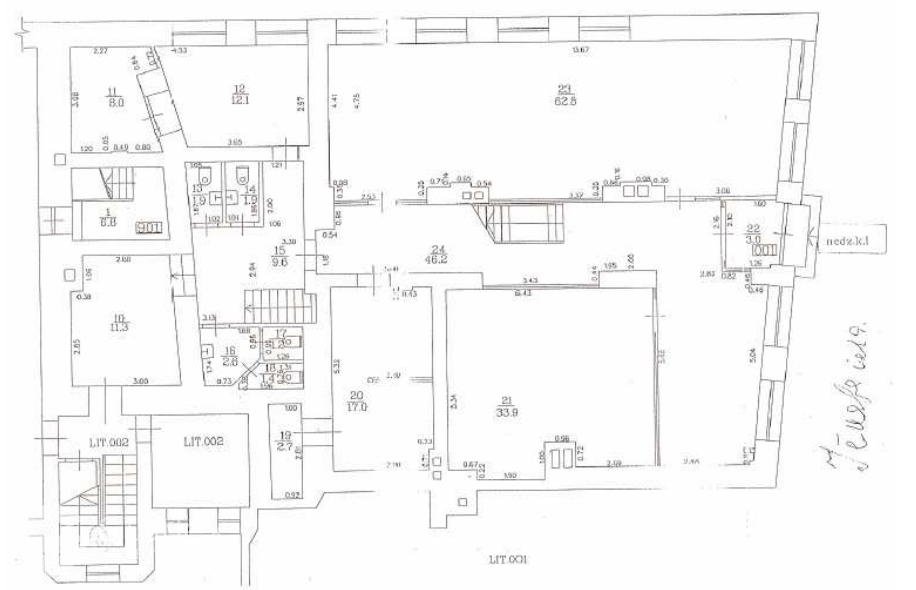
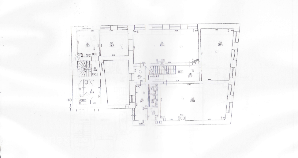
Plānojums:



Uz kartes:

Starlex inovatīvā un atraktīvā pieeja nodrošina efektīvu pārdošanas procesu!
X

Nosūtīt ziņu

Privātums ir svarīgs

Mēs izmantojam sīkdatnes, lai nodrošinātu jums labāko pieredzi mūsu vietnē.

Mēs izmantojam arī papildu sīkdatnes, lai saprastu, kā tiek izmantota mūsu vietne un uzlabotu mūsu pakalpojumus.