Starlex Birojs Rīgas centrā Berga bazārā

Birojs Rīgas centrā Berga bazārā


189 m2

4 telpas

3 / 3 stāvs
1 300 EUR/mēn - 6,9 EUR/m2
Elizabetes iela 85A, Centrs, Rīga
Oskars Frīde
+371 29352652
oskars@starlex.lv
Pieteikt apskati
← Atpakaļ
Galerija

Apraksts:

Biroja telpas Berga Bazārā. Telpas atrodas vienā no Berga Bazāra skaistākajām pasāžām ar koku aleju un soliņiem atpūtai. Telpās ir plaši logi ar skatu gan uz Elizabetes ielas gan uz Berga Bazāru. Ērta piekļuve sabiedriskajam transportam, tuvumā vairākas autostāvvietas.

Telpas ir labā stāvoklī un gatavas lietošanai. Telpas tiek piedāvātas nemēbelētas. Telpās ir ventilācijas sistēma. Nomnieks ir atbildīgs par telpu uzlabojumiem, IT sistēmām un apsardzes signalizāciju. Nomniekam uzticama īpašuma pārvaldīšana un apsaimniekošana.

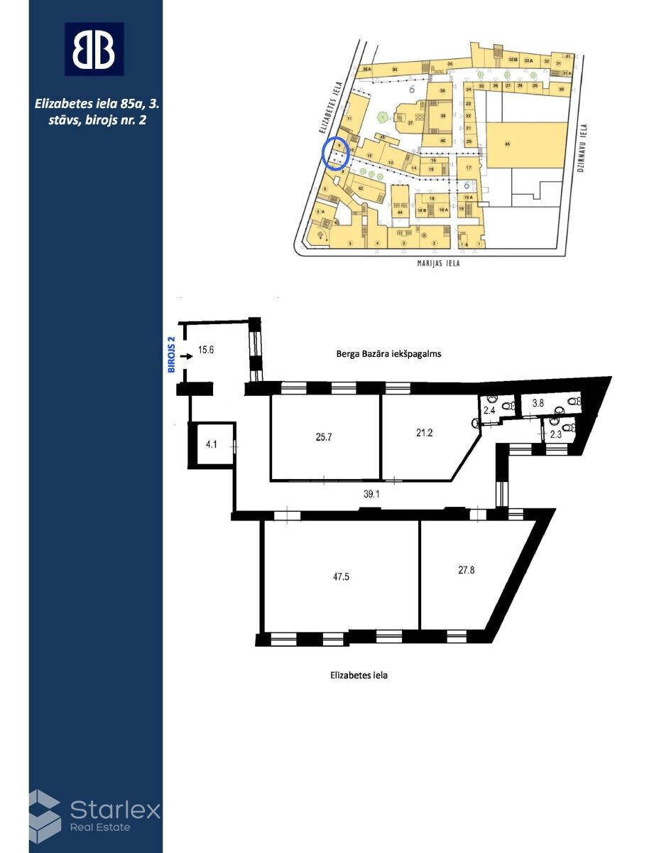
Plānojums: 4 izolētas darba telpas, neliela priekštelpa, 2 WC.

Platība: 189,5 m2 (3.stāvs, nav lifta)

Noma: 1300€/mēn. + PVN

Papildus maksājumi: Apsaimniekošana- 309€ mēn. + PVN; NĪN- 157€ mēn. + PVN; teritoriālā apsardze- 123€ mēn. + VAT; komunālo pakalpojumu izdevumi- vidēji 361€ mēn. + PVN vasarā un 787€ mēn. + PVN ziemā. (Aprēķini sagatavoti, vadoties pēc līdzvērtīgu telpu patēriņa, spēkā esošajiem tarifiem un iznomātāja prognozēm. Faktiskās izmaksas var atšķirties no šīm prognozētajām izmaksām.)

  • Centrālā apkure
  • Internets
  • Slēdzama kāpņu telpa
  • Elektrības pieslēgums
  • Ūdens pieslēgums



Plānojums:



Uz kartes:

Starlex inovatīvā un atraktīvā pieeja nodrošina efektīvu pārdošanas procesu!
X

Nosūtīt ziņu

Privātums ir svarīgs

Mēs izmantojam sīkdatnes, lai nodrošinātu jums labāko pieredzi mūsu vietnē.

Mēs izmantojam arī papildu sīkdatnes, lai saprastu, kā tiek izmantota mūsu vietne un uzlabotu mūsu pakalpojumus.