Starlex Pārdod namīpašumu Tērbatas/Blaumaņu ielu krustojumā

Pārdod namīpašumu Tērbatas/Blaumaņu ielu krustojumā


2386 m2

1030 m2

pirmskara
3 500 000 EUR
Tērbatas iela 22/24 , Centrs, Rīga
Oskars Frīde
+371 29352652
oskars@starlex.lv
Pieteikt apskati
← Atpakaļ
Galerija

Apraksts:

Pārdod namīpašumu prestižā vietā Rīgas centrā, Tērbatas ielā 22/24 un Blaumaņa ielā 14 (netālu no T/C ''Galerija Riga'').

Mūra īres nams ar veikaliem celts 1897. gadā - arhitekts Rūdolfs Filips Donbergs.

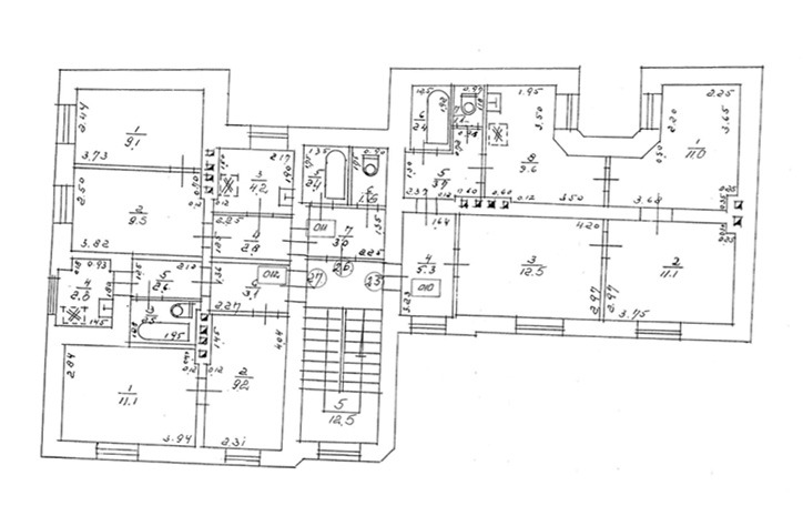
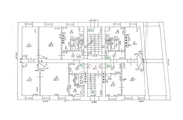
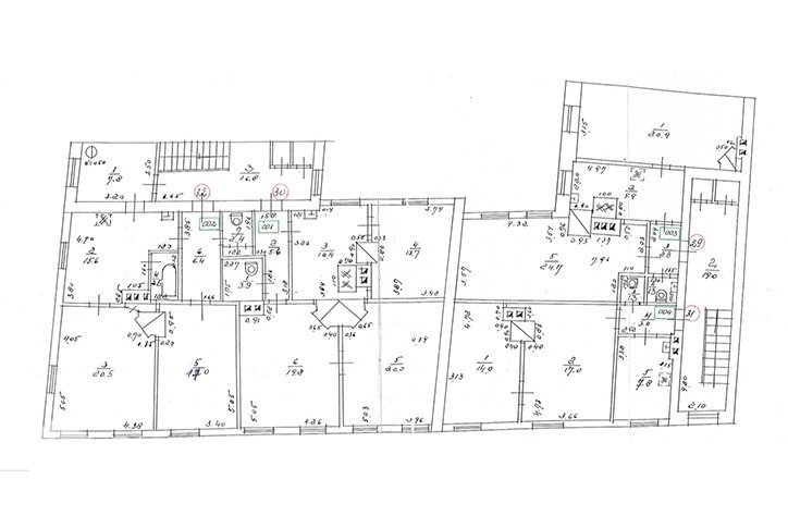
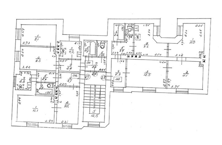
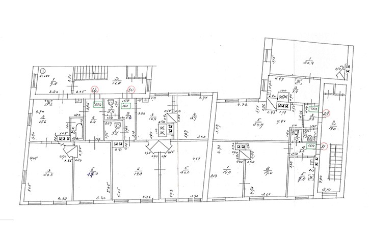
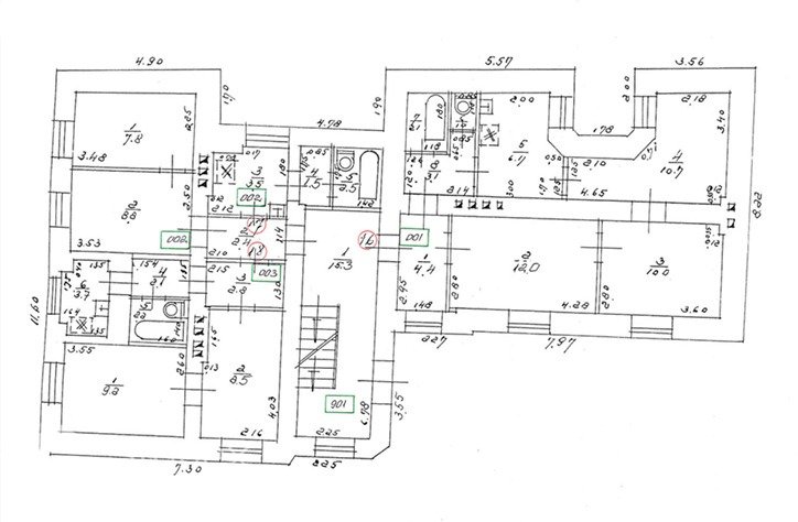
Īpašums ar kopējo platību 2386 m2 (lietderīgā platība 1942m), novietots uz 1030 m2 zemes gabala un sastāv no 3 ēkām: 2-stāvu ēkas Tērbatas iela 22/24, 5-stāvu ēkas Blaumaņa ielā 14 un iekšpagalma ēkas. Pagraba telpas zem pagalma - 153 m2.

31 dzīvoklis un 6 komercetelpas (Blaumaņa ielas 14 cokolstāvā - 2, Tērbatas ielas 22/24 1. stāvā - 4).

Namīpašums ir labi uzturēts, pēdējo gadu laikā renovētas abu ēku fasādes, pieejamas visas pilsētas ērtības un komunikācijas ''Rīgas siltums'' apkure, 3 fāžu vājstrāvas tīkli, ūdens/kanalizācija.

Apkārtnē labi attīstīta infrastruktūra, 2 minūšu gājiena attālumā atrodas T/C ''Galerija Riga'', apkārtnē daudz prestiži veikali, kafejnīcas, tuvumā labi attīstīta sabiedriskā transporta infrastruktūra - tramvajs uz Krišjāņa Barona ielas un daudzi trolejbusu/autobusu maršruti uz Brīvības ielas.

Īpašums ir pilnībā iznomāts un nes stabilu peļņu ~ 6% gadā.

Cena: 3500000 EUR.


  • Centrālā apkure
  • Internets
  • Slēdzama kāpņu telpa
  • Elektrības pieslēgums
  • Ūdens pieslēgums



Plānojums:



Uz kartes:

Starlex inovatīvā un atraktīvā pieeja nodrošina efektīvu pārdošanas procesu!
X

Nosūtīt ziņu

Privātums ir svarīgs

Mēs izmantojam sīkdatnes, lai nodrošinātu jums labāko pieredzi mūsu vietnē.

Mēs izmantojam arī papildu sīkdatnes, lai saprastu, kā tiek izmantota mūsu vietne un uzlabotu mūsu pakalpojumus.